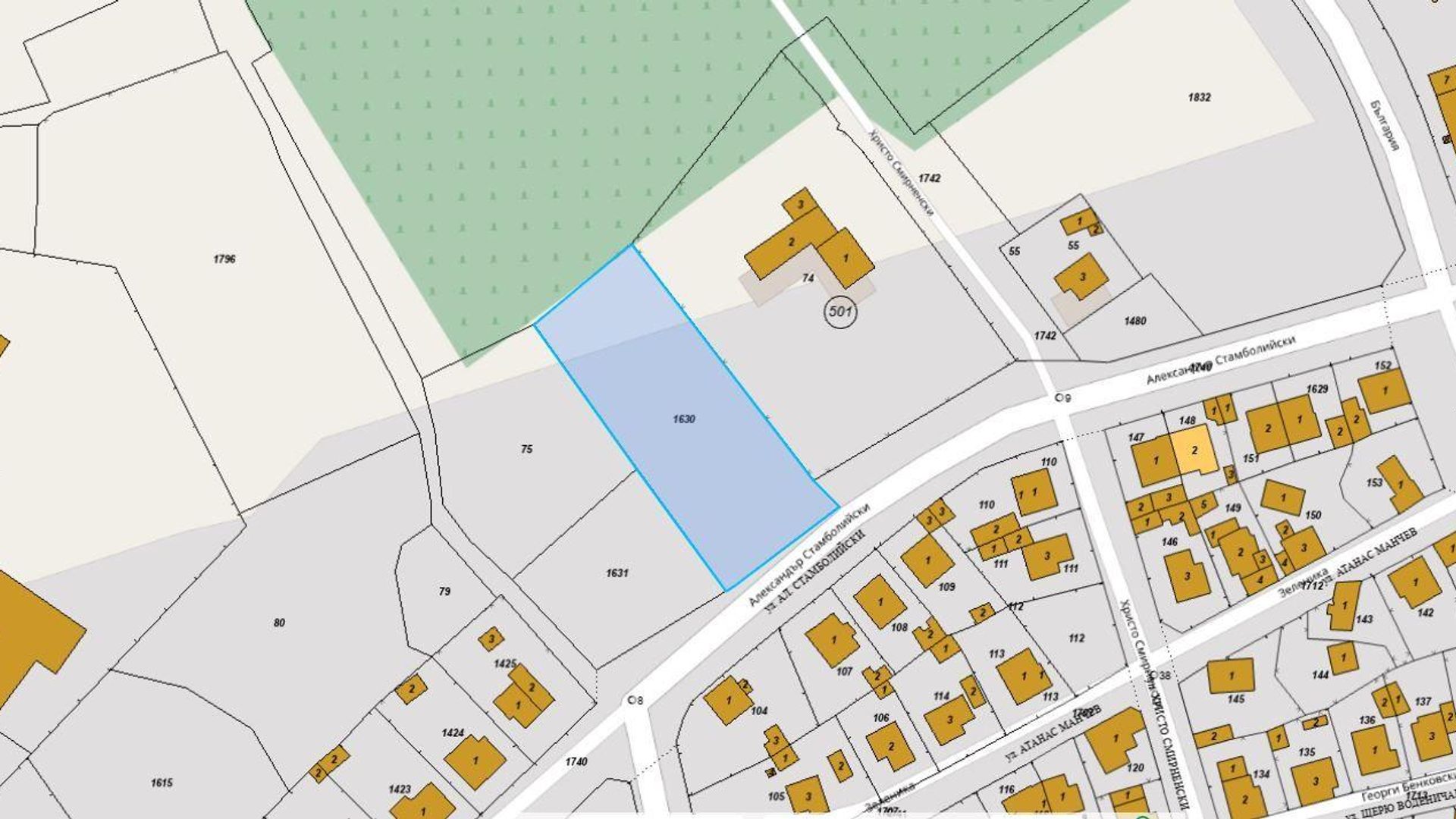
Агенция за недвижими имоти "Титан Пропъртис" предлага за продажба, Парцел( УПИ) в гр. Малко Търново
<br/>
<br/>Намира се в градска част, в близост до ветеринарна клиника с възможност за прекарване на вода и ток
<br/>
<br/>Вид собственост: Частна.
<br/>Вид територия: Урбанизирана, НТП
<br/>Площ: 2299кв.м.
<br/>
<br/>Агенцията съдейства за банково кредитиране с всички водещи банки в страната при най-добри условия!
<br/>
<br/>За оглед на това и други атрактивни предложения, не се колебайте да ни потърсите на посочения телефон или да ни изпратите данните си чрез формата за запитване на сайта. Реф. номер: 2099930
Допълнителна информация 
| Тип на имота | |
| Площ | 2299 кв.м. |
| Цена на кв.м. | € 17 |
| Референтен номер | 78904 |
| Район | |
Подобни имоти
Топ imi имоти