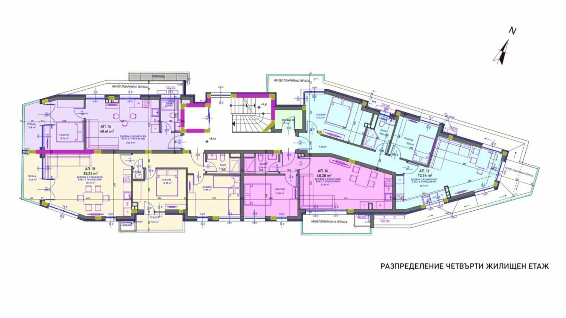
🏡 Тристаен апартамент с МОРСКА ГЛЕДКА в Сарафово. ✨ Без комисиона от купувача ✨ Без такса поддръжка ✨ Сграда с АКТ 16 Ем Джи Естейт продава просторен тристаен апартамент в модeрна жилищна сграда, разположена само на метри от морето в кв. Сарафово, гр. Бургас. 📐 Площ: 129,11 кв.м 🏢 Етаж: 4 (непоследен) 🌅 Изложение: север / изток / юг 🛋️ Разпределение: всекидневна с кухня, 2 спални, баня с тоалетна, тераса 🏡Сградата е построена с висококачествени материали, разполага с тих и модерен асансьор и предлага комфортна и устойчива среда за живеене. 📍 Локацията е топ: На няколко крачки от плажа, с бърз достъп до ресторанти, магазини, автобусни спирки, паркове, тенис кортове, яхтено пристанище и велоалея. **Обадете се сега и цитирайте този код: ДП-1695099 . **Агенция „Ем Джи Естейт“ е член на НСНИ и администратор на лични данни. **Преди огледа се провежда среща в нашия офис, за да се запознаем с изискванията Ви и за да оформим документи съгласно ЗЗД и ЗМИП. **По време на огледа се подписва Протокол за оглед.
Допълнителна информация 
| Тип на имота | |
| Площ | 129 кв.м. |
| Цена на кв.м. | € 1535 |
| Година на построяване | 2000 |
| Етаж | 4 |
| Асансьор | Не |
| Референтен номер | A-1695099 |
| Район | |
| Гараж | Не |
| Общо етажи | 4 |
Подобни имоти
Топ imi имоти