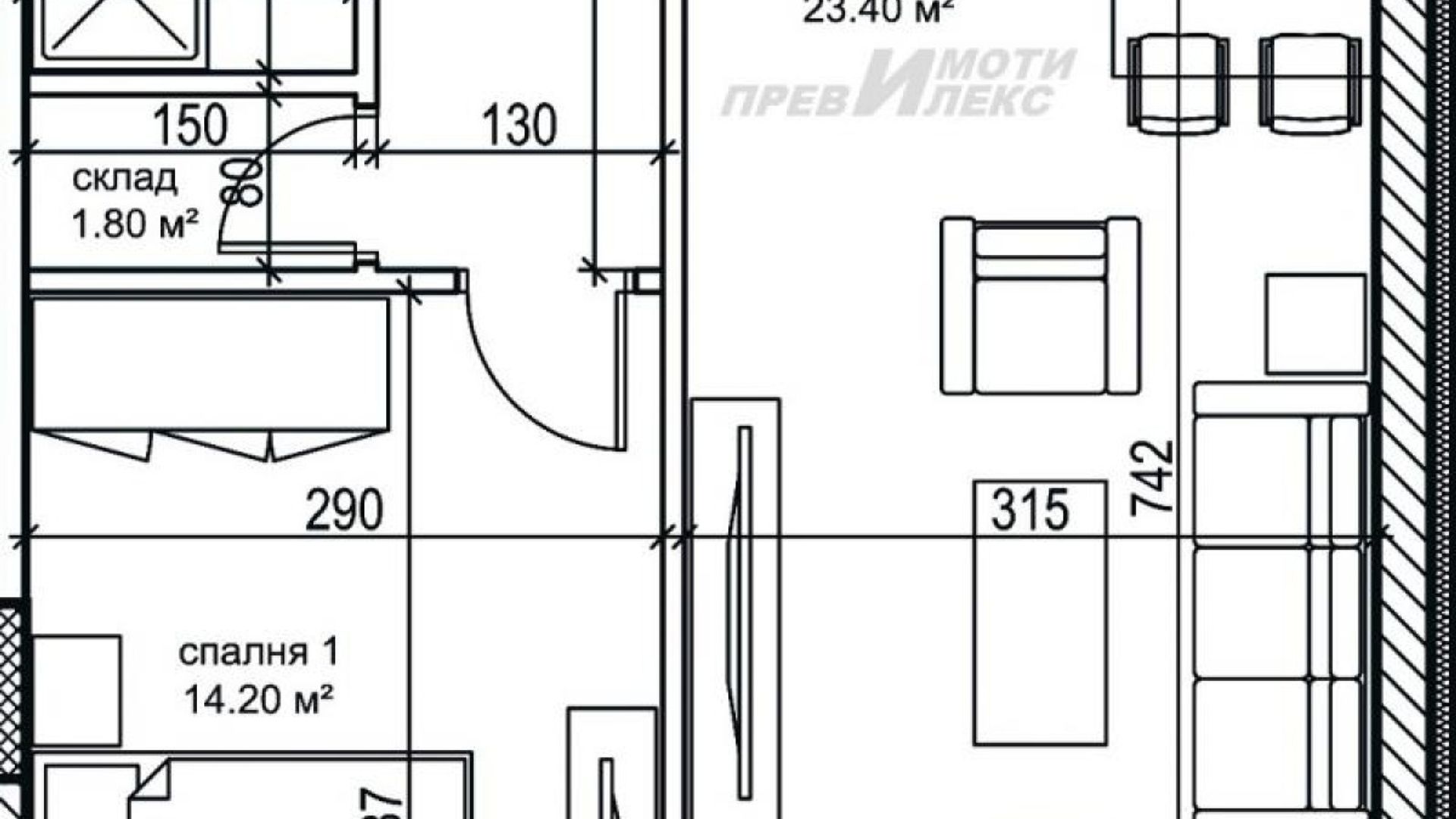
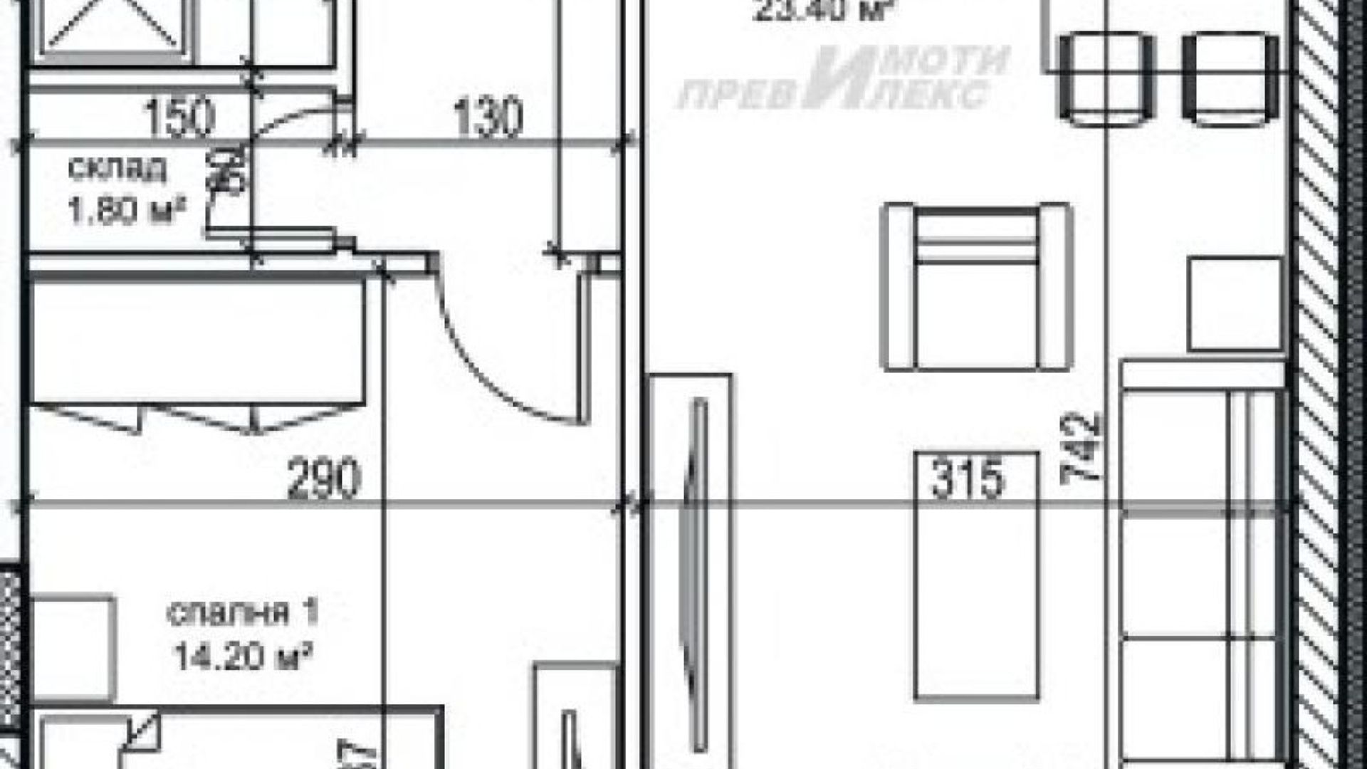
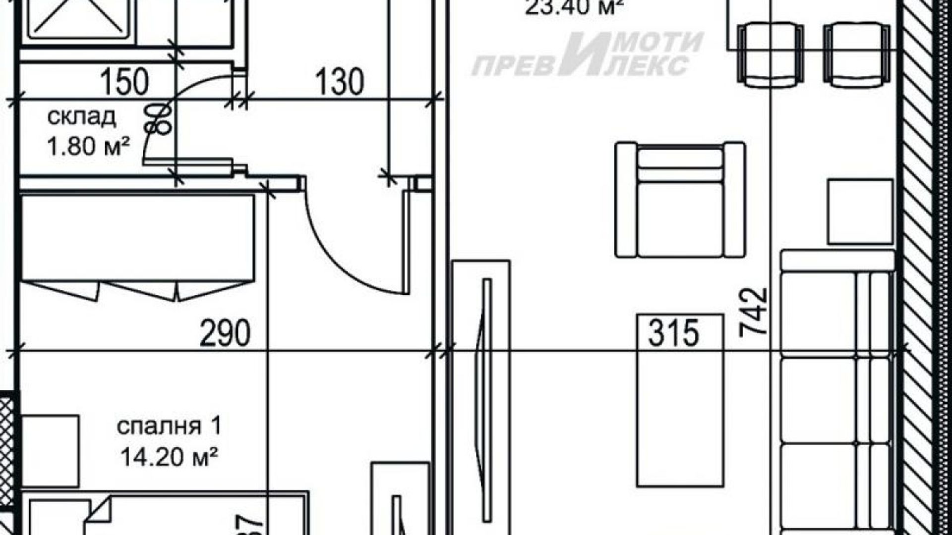
Оферта 1-4600, Пред акт 16. Цени на инвеститор. Избор на етаж, изложение и големина на 2-стайни,3-стайни и многостайни апартаменти. Предлагаме Ви двустаен апартамент в ново-строяща се сграда, част от композиция от сгради с жилищна част, търговски помещение и зелени площи. На тиха улица с бърз достъп до главни пътни артерии. На близко разстояние от търговска зона в квартала, училище и детска градина. Разпределение на помещенията: дневна с кухненски бокс с излаз на обща тераса, спалня, баня с тоалетна, склад и входно антре. Възможност за закупуване на гараж или парко-място. Схеми на разсрочено плащане, съобразени с възможностите на купувача. Доказал се във времето инвеститор с много завършени сгради. Степен на завършване: стени и таван - шпакловка, под - циментова замазка, ВиК до тапа, ел. инсталация до фасунга и ключ, PVC дограма, завършени тераси с гранитогрес и парапет. Луксозно завършени общи части - вътрешни и външни парапети, блиндирана входна, контролиран достъп и електрически безшумен асансьор. Препоръчваме това жилище при избора Ви на нов дом или като подходящ инвестиционен инструмент. Гарантираме, че ще получите необходимото внимание и компетентно съдействие. Ние ще Ви предложим професионално отношение и чрез индивидуален подход ще се стремим да бъдем максимално полезни в търсене на най-доброто решение за Вас. Работим с голям кръг от инвеститори, строители и колеги и се стремим да покрием с максимално изчерпателна информация и оферти зададените от Вас критерии. Съдействаме за получаване на ипотечен кредит за имота, който сте избрали, при най-добри условия за купувача. За повече подробности, проект или оглед сме на разположение на посочения телефон.
Допълнителна информация 
| Тип на имота | |
| Площ | 71 кв.м. |
| Цена на кв.м. | € 1709 |
| Година на построяване | |
| Етаж | 2 |
| Асансьор | Не |
| Референтен номер | 1-4600-2 |
| Район | |
| Гараж | Не |
| Общо етажи | 2 |
Подобни имоти
Топ imi имоти