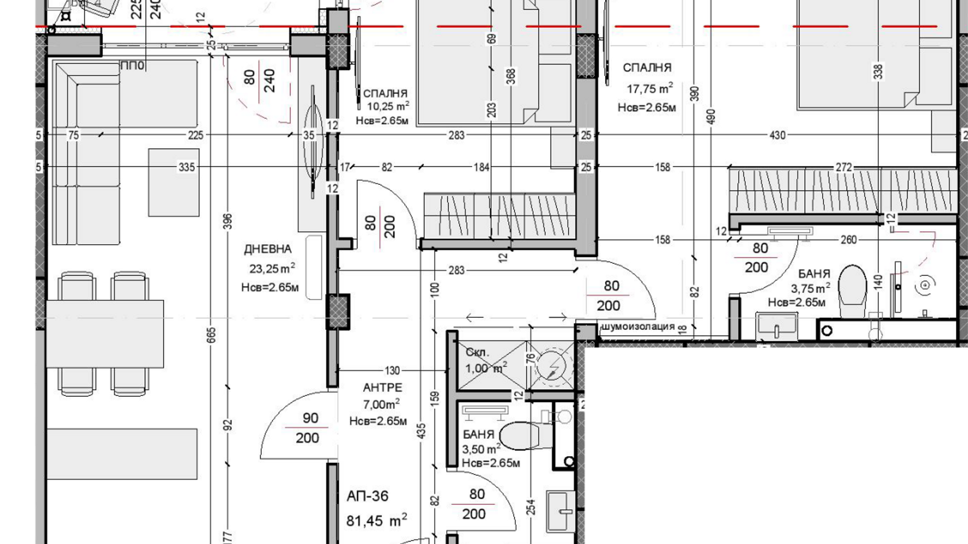
ТРИСТАЕН АПАРТАМЕНТ в нова сграда – кв. Остромила, Пловдив Директно от инвеститора – без комисионна! Предлагаме тристаен апартамент №36 в новостроящата се сграда P Boutique Homes, част от проектите на LUX LIVING – строително-инвестиционна компания с над 12 успешно завършени сгради в Пловдив. Сградата се отличава с модерен дизайн, висок стандарт на строителство и внимание към всеки детайл, разположена в тиха и развиваща се част на кв. Остромила, с удобен достъп до основни булеварди. ✔️ Разпределение: • Просторна дневна с кухненски бокс • Две спални • Две бани с тоалетни • Тераса • Входно антре • Малък склад 📏 Обща площ: 95,02 кв.м 🏢 Етаж: 3 от 6 🧭 Изложение: север 🧱 Сграда и изпълнение: • Вентилируема фасада с HPL панели • Изолация с каменна вата – отлична шумо и топлоизолация • Алуминиева дограма ETEM с троен стъклопакет • Входни блиндирани врати с височина 2,32 м • Замазка Baumit – висок клас • Тухли Wienerberger • 24/7 видеонаблюдение и контролиран достъп • Луксозно завършени общи части с италиански довършителни материали • Модерен асансьор 💰 Плащане и условия: • Гъвкави схеми на плащане – възможност за разсрочено плащане по етапи на строителството • Пълна документация и ясни договорни отношения • Прозрачни условия – без скрити такси и без комисионна 🚗 Паркиране: Възможност за закупуване на паркомясто. 📅 Срок на завършване: До края на 2027 г. 💡 Предимства: ✅ Директно от инвеститора LUX LIVING – без комисионна ✅ Възможност за разсрочено плащане ✅ Контролирано строителство с висок стандарт ✅ Италиански довършителни материали и луксозни общи части ✅ Пълна документация и прозрачни условия ✅ Подходящ както за живеене, така и за инвестиция 📞 Контакт: 089 407 8013 | 088 999 9959 | 089 789 4909 🌐 www.pbhomes.bg
Допълнителна информация 
| Тип на имота | |
| Площ | 95 кв.м. |
| Цена на кв.м. | € 1250 |
| Година на построяване | 2000 |
| Етаж | 3 |
| Асансьор | Не |
| Референтен номер | A-1544575 |
| Район | |
| Гараж | Не |
| Общо етажи | 3 |
Подобни имоти
Топ imi имоти