Титан Пропъртис представя на Вашето внимание тристаен апартамент в един от най-луксозните комплекси в кв. Каменица 1. Намира се в непосредствена близост до зони за отдих и спорт, търговски обекти, хипермаркети и спирки на градски транспорт.
<br/>
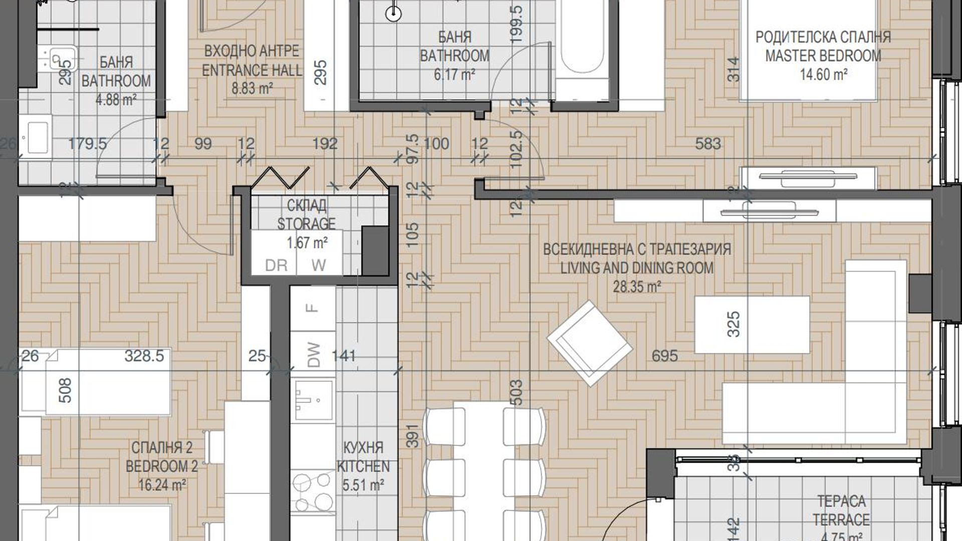
<br/>Имотът е ситуиран на 1-ви жилищен етаж и разполага със застроена площ от 108,21 кв.м., разгърната в следното практично разпределение: коридор, хол с трапезария и кухня, две спални, две бани с тоалетни, склад , тераса.
<br/>
<br/>Степен на завършеност: Акт 16. Изложение: Изток/Юг. Отопление: Електричество
<br/>
<br/>Жилищата разполагат с окабеляване за умен дом, възможност за система за пресен въздух, филтри за вода, централно отопление и сензори против наводнения.
<br/>
<br/>На разположение са фитнес, уелнес зона, басейн и луксозен спа комплекс. Собствениците се възползват от ниска такса поддръжка и селекция от иновативни допълнителни услуги.
<br/>
<br/>Жилището се продава на шпакловка и замазка, за да може Вашето въображение да го превърне в мечтания за Вас нов ДОМ! За оглед на това и други атрактивни предложения, не се колебайте да ни потърсите на посочения телефон или да ни изпратите данните си чрез формата за запитване на сайта.
<br/>
<br/>Реф. номер: 2102537
Допълнителна информация 
| Тип на имота | |
| Площ | 128.56 кв.м. |
| Цена на кв.м. | € 2900 |
| Година на построяване | 2025 |
| Етаж | 1 |
| Асансьор | Не |
| Референтен номер | 81511 |
| Район | |
| Гараж | Не |
| Общо етажи | 1 |
Подобни имоти
Топ imi имоти