Открийте мястото, където ще се чувствате у дома от първия момент.
<br/>
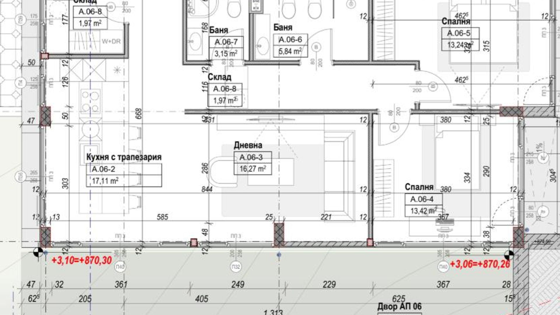
<br/>Титан Пропъртис офис - Черни връх с радост предлага на Вашето внимание тристаен апартамент за продажба в кв. Бояна. Жилището с площ 109 кв.м се намира на партерен етаж от общо 4 етажа в нова сграда на етап Акт 14, която ще бъде въведена в експлоатация края на 2026 г. Изложението Изток/Запад/Север осигурява оптимална дневна светлина. Просторният план включва входно антре, хол с кухненски бокс и трапезария, две отделни спални, баня с тоалетна, отделна тоалетна, складово помещение и собствен двор. Дворът предлага възможност за озеленяване и релакс на открито. Отоплението е на електричество. Апартаментът е завършен на шпакловка и замазка и е част от ново строителство.
<br/>
<br/>В близост до имота ще намерите:
<br/>
<br/>- Училище: Maple Bear School Sofia на 332 метра
<br/>- Медицински център: DeTox Center на 239 метра
<br/>- Автобусна спирка: УЛ. АКАЦИЯ - ПО ЖЕЛАНИЕ на 213 метра
<br/>- Детски образователен център "Звезда" | Бояна
<br/>
<br/>"С нас, вашето търсене на имот завършва с усмивка."
<br/>
<br/>За оглед на това и други атрактивни предложения, не се колебайте да ни потърсите на посочения телефон или да ни изпратите данните си чрез формата за запитване на сайта.
<br/>
<br/>Реф. номер: 2107953.
Допълнителна информация 
| Тип на имота | |
| Площ | 109 кв.м. |
| Цена на кв.м. | € 3005 |
| Година на построяване | 2026 |
| Етаж | 0 |
| Асансьор | Не |
| Референтен номер | 2107953 |
| Район | |
| Гараж | Не |
| Общо етажи | 0 |
Подобни имоти
Топ imi имоти