Открийте мястото, където ще се чувствате у дома от първия момент.
<br/>
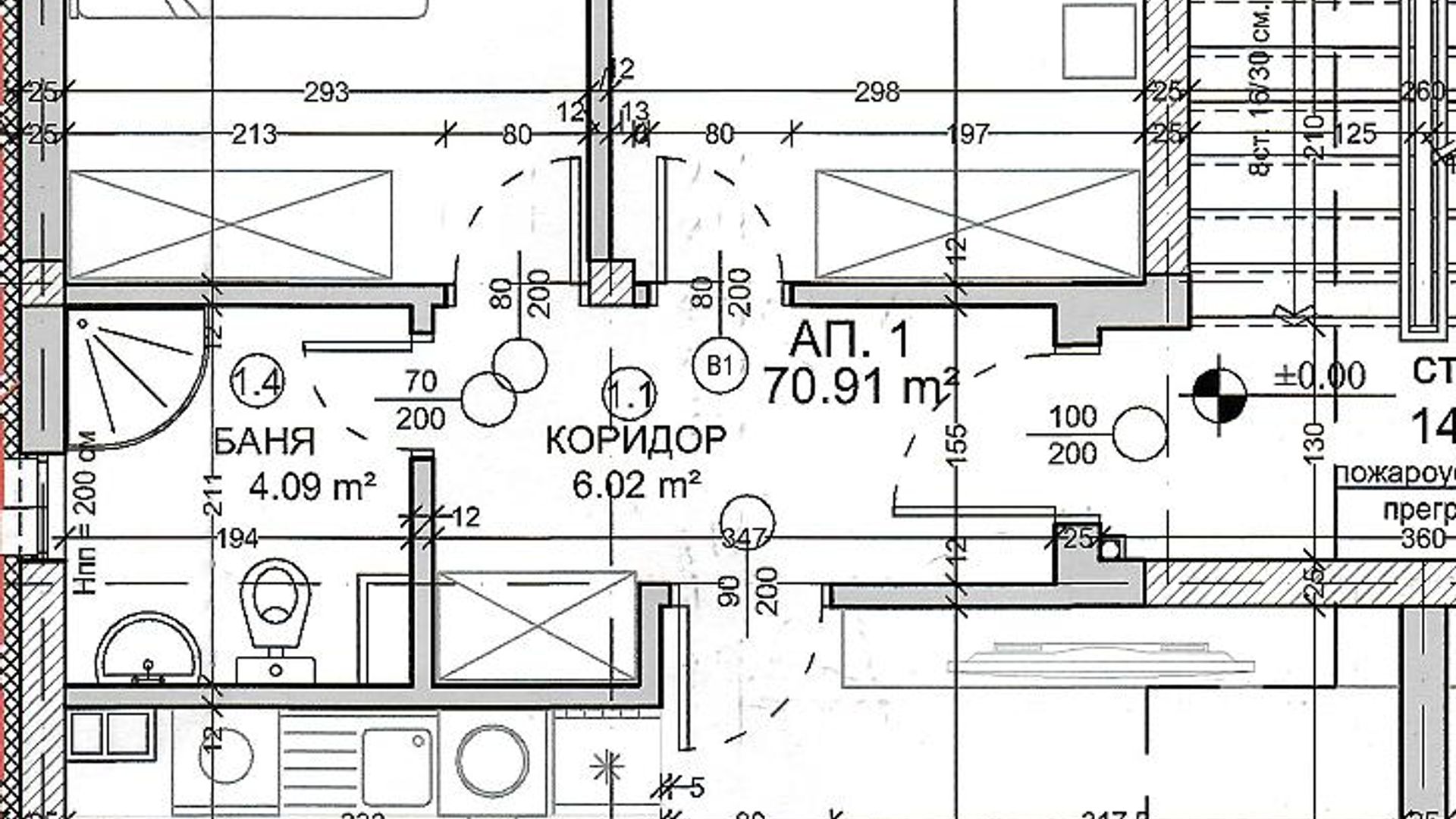
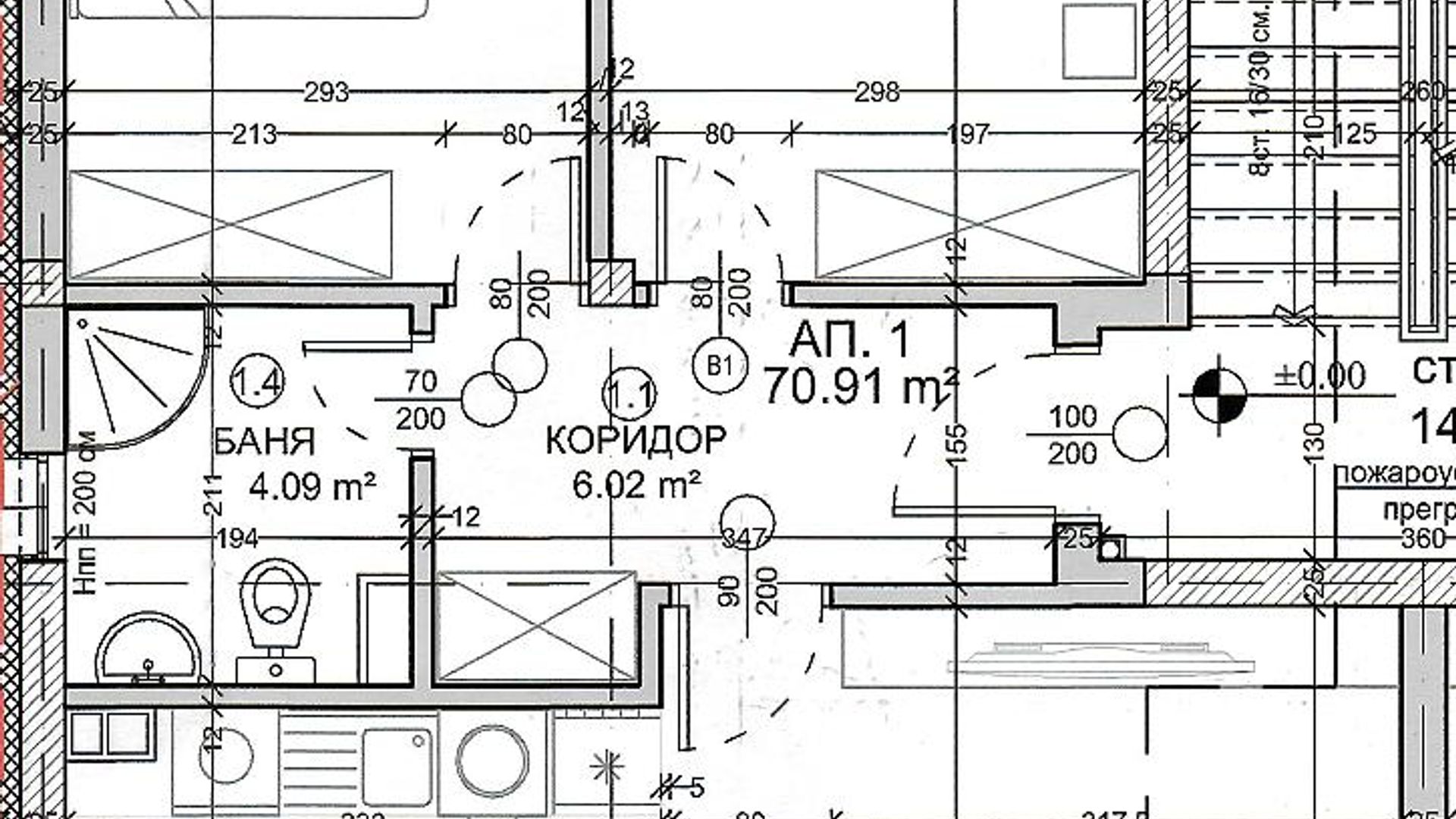
<br/>Титан Пропъртис офис - Черни връх с радост предлага на Вашето внимание тристаен апартамент за продажба в кв. Драгалевци. Жилището от 80 кв.м се намира на първи етаж от общо четири етажа в нова сграда, която ще бъде въведена в експлоатация края на 2028 г. Източно, западно и южно изложение гарантира дневна светлина. Разпределението включва входно антре, просторен хол с кухненски бокс, две спални, баня с тоалетна и собствен двор. Съвременната газова инсталация осигурява ефективно отопление, а имотът се предлага на шпакловка и замазка, готов за финално обзавеждане според Вашите предпочитания. Апартаментът в ново строителство предлага възможност за инвестиция или дългосрочно живеене в спокойна и добре обслужена локация.
<br/>
<br/>В близост до имота ще намерите:
<br/>
<br/>- 160 ОДЗ на 278 метра
<br/>- Училище: Little Steps Kindergarten на 334 метра
<br/>- Аптека: Катерина на 187 метра
<br/>- Автобусна спирка: УЛ. ЗЛАТЕН ВЕК на 382 метра
<br/>- Автобусна спирка: УЛ. ЛАГАДИНА на 297 метра
<br/>
<br/>"С нас, вашето търсене на имот завършва с усмивка."
<br/>
<br/>За оглед на това и други атрактивни предложения, не се колебайте да ни потърсите на посочения телефон или да ни изпратите данните си чрез формата за запитване на сайта.
<br/>Реф. номер: 2088238.
Допълнителна информация 
| Тип на имота | |
| Площ | 78.64 кв.м. |
| Цена на кв.м. | € 3293 |
| Година на построяване | 2028 |
| Етаж | 1 |
| Асансьор | Не |
| Референтен номер | 2088238 |
| Район | |
| Гараж | Не |
| Общо етажи | 1 |
Подобни имоти
Топ imi имоти