Агенция за недвижими имоти Калиста Естейт има огромното удоволствие да Ви представи тристаен апартамент в ж.к. Дружба 2.
<br/>
<br/>Обзавеждане: шпакловка и замазка
<br/>Етап на строителство: акт 14; пусков срок за въвеждането на сградата в експлоатация - края на 2026г.
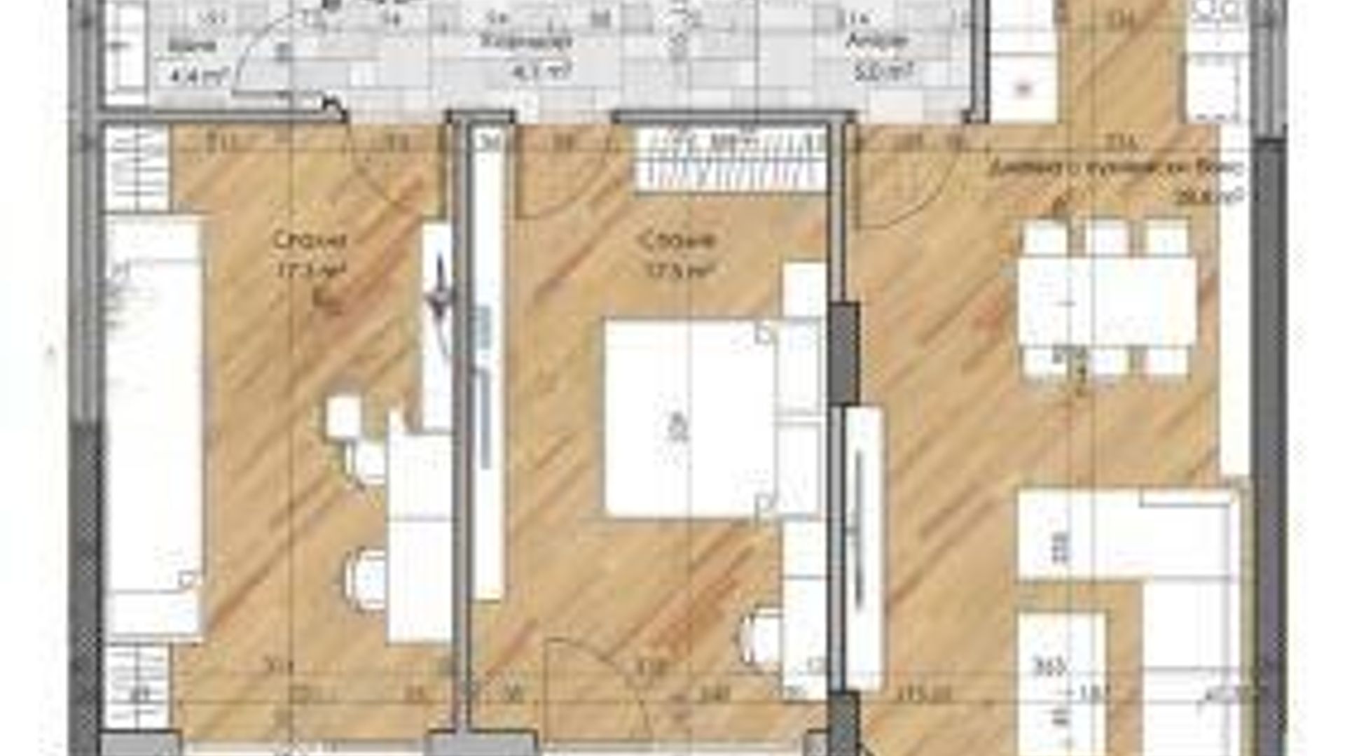
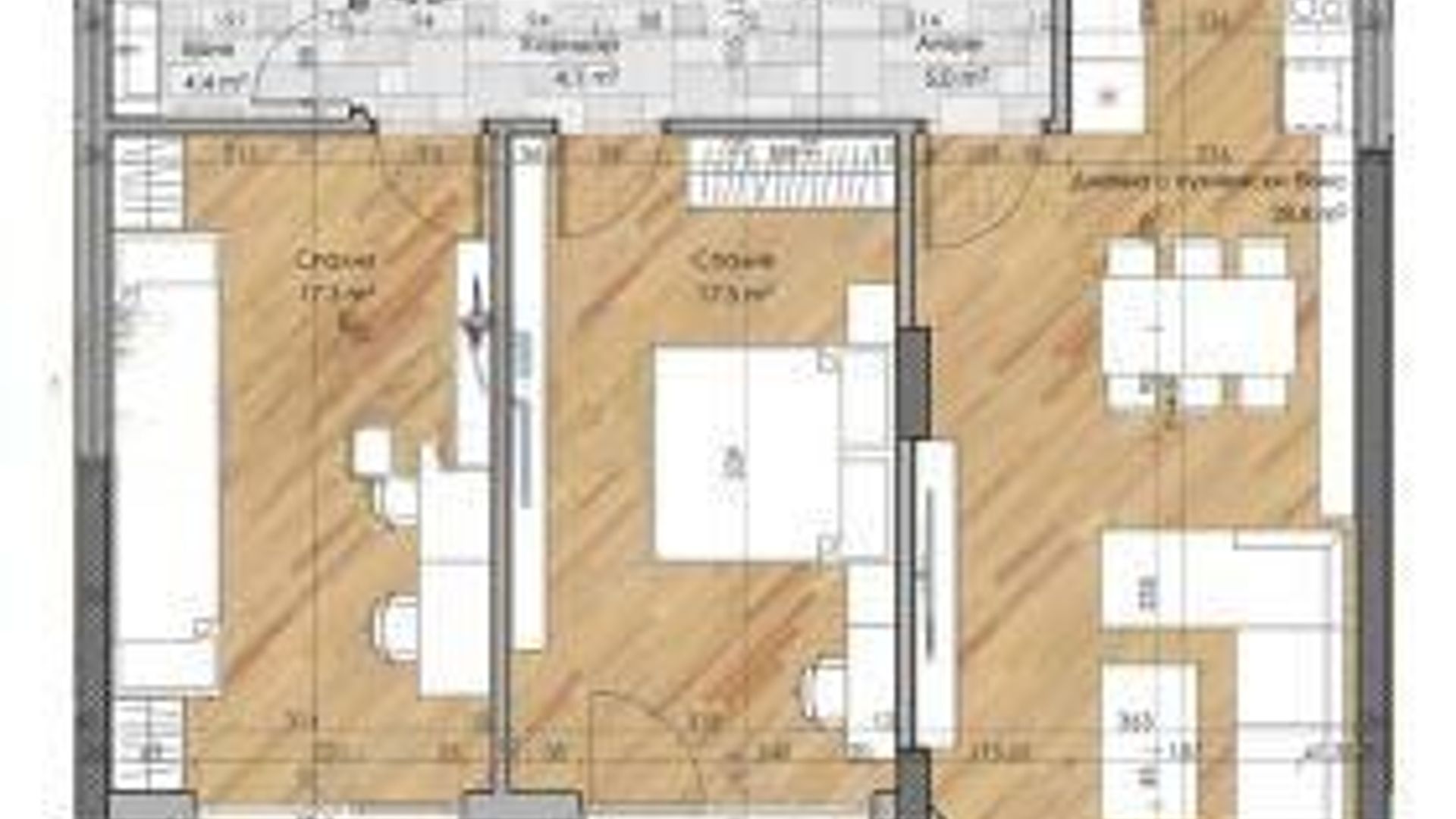
<br/>Разпределение: входно антре, кухненски бокс с хол и трапезария, две спални, баня с тоалетна, тоалетна и тераса
<br/>Квадратура: 111кв.м.
<br/>Етажност: 5 от 6
<br/>Асансьор: да
<br/>Отопление : електричество
<br/>Изложение: Юг/Север
<br/>Предимства на имота: светъл и просторен на комуникативна локация. Намира се в непосредствена близост до парк, метростанция, заведения, хранителни магазини, училище, детска градина и търговски обекти. Апартаментът разполага с МАЗЕ с големина 7кв.м. за допълнително съхранение на багаж. Подходящ е за тези от Вас, които търсят своя нов дом мечта или за онези, които търсят перфектната инвестиционна възможност.
<br/>РЕФ.НОМЕР: 2106756
<br/>
<br/>При проявен интерес към тази оферта или ако желаете БЕЗПЛАТНА консултация, може да се свържете с нас на посочения телефон.
<br/>
Допълнителна информация 
| Тип на имота | |
| Площ | 111 кв.м. |
| Цена на кв.м. | € 3378 |
| Година на построяване | 2026 |
| Етаж | 5 |
| Асансьор | Не |
| Референтен номер | 2106756 |
| Район | |
| Гараж | Не |
| Общо етажи | 5 |
Подобни имоти
Топ imi имоти