Открийте мястото, където ще се чувствате у дома от първия момент.
<br/>
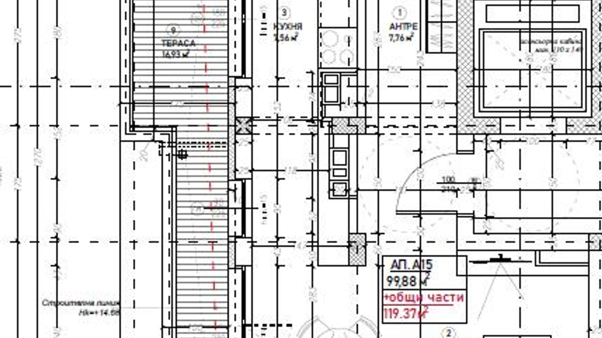
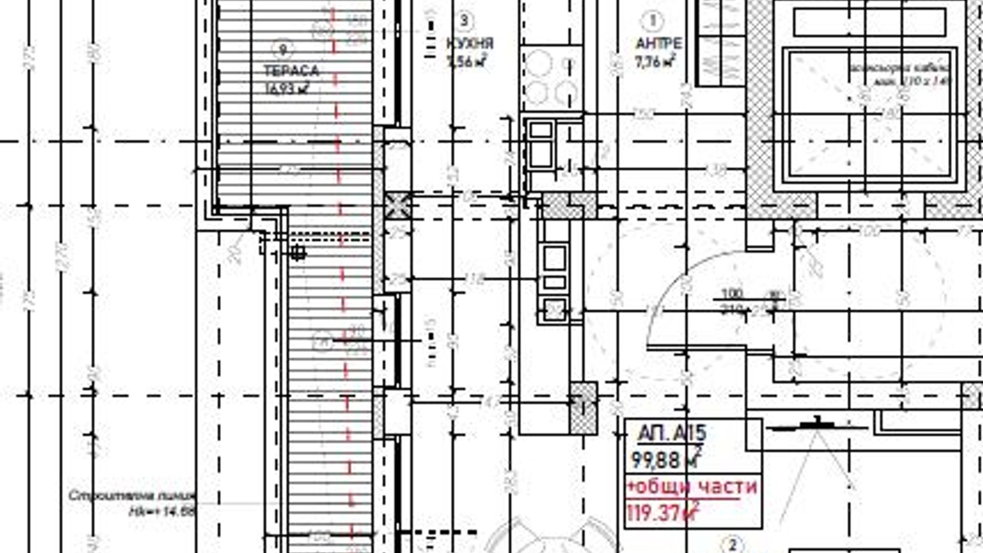
<br/>Титан Пропъртис офис - Черни връх с радост предлага на Вашето внимание тристаен апартамент за продажба в ж.к. Левски В. Жилището с площ 119.37 кв.м е разположено на 5-ти етаж от общо 7 в нова сграда на Акт 14, която ще бъде завършена края на 2026 г. Изложението Запад/Север/Юг гарантира оптимална дневна светлина и прохлада. Функционалният план включва антре, просторна дневна, кухня, две спални, два балкона и тераса. Отоплението е на електричество. Апартаментът се предлага на шпакловка и замазка, което дава възможност за завършване според личния Ви стил. Към имота се предлага подземно паркомясто на цена от 30 000 евро.
<br/>
<br/>В близост до имота ще намерите:
<br/>
<br/>- ДГ 92 "Мечта" на 272 метра
<br/>- Частна детска градина "Busy Land" на 405 метра
<br/>- Банка ДСК на 205 метра
<br/>- Банкомат: ATM - Банка ДСК на 202 метра
<br/>- Аптека Дейзи-2 на 252 метра
<br/>- Аптека: Стемесо на 178 метра
<br/>- Автогара: АВТОСТАНЦИЯ ИЗТОК на 466 метра
<br/>- Автобусна спирка: БЛ. 11 Ж.К. ЛЕВСКИ-В на 144 метра
<br/>
<br/>"С нас, вашето търсене на имот завършва с усмивка."
<br/>
<br/>За оглед на това и други атрактивни предложения, не се колебайте да ни потърсите на посочения телефон или да ни изпратите данните си чрез формата за запитване на сайта.
<br/>Реф. номер: 2103721.
Допълнителна информация 
| Тип на имота | |
| Площ | 119.37 кв.м. |
| Цена на кв.м. | € 1910 |
| Година на построяване | 2026 |
| Етаж | 5 |
| Асансьор | Не |
| Референтен номер | 82695 |
| Район | |
| Гараж | Не |
| Общо етажи | 5 |
Подобни имоти
Топ imi имоти