Открийте мястото, където ще се чувствате у дома от първия момент.
<br/>
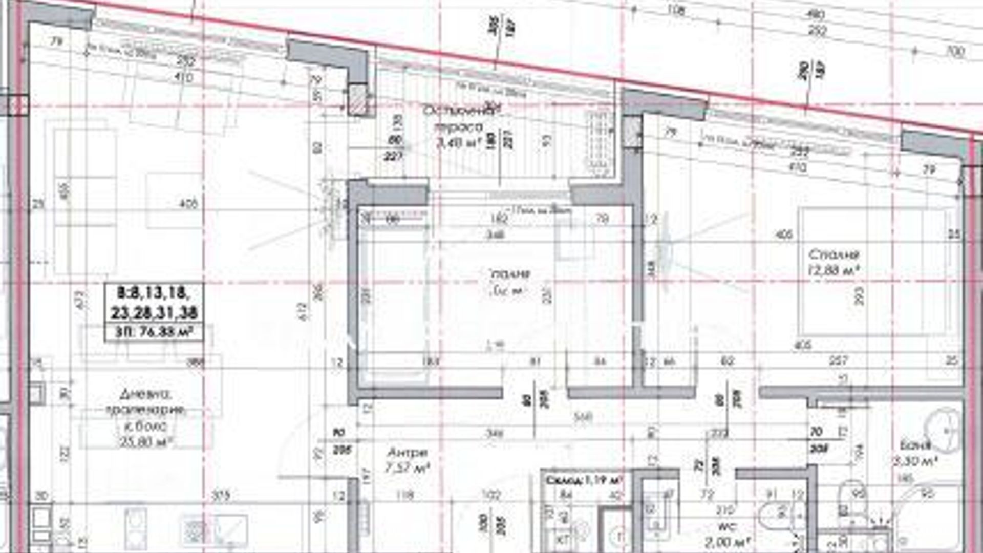
<br/>Титан Пропъртис офис - Бул.България с радост предлага на Вашето внимание тристаен апартамент за продажба в кв. Овча купел. Жилището със застроена площ от 76,33 кв.м е разположено на 3-ти етаж от общо 10 етажа в нова сграда на етап Акт 14, която ще бъде въведена в експлоатация края на 2026 г. Изток/Юг изложението осигурява обилна естествена светлина в просторните помещения.
<br/>
<br/>Разпределението включва входно антре, хол, две обособени спални, складова ниша, отделна тоалетна и баня с тоалетна. Отоплението е на газ, което допринася за ефективен разход през зимата. Имотът е на шпакловка и замазка, което позволява довършване и обзавеждане изцяло по ваш вкус. Жилището се издава с прекарани изводи и предвидени стойки за климатична система.
<br/>
<br/>Апартаментът е част от модерен жилищен проект от затворен тип. Локацията съчетава спокойна градска среда с удобен достъп до ключови пътни артерии и бърза връзка с центъра на града. Комплексът се състои от няколко самостоятелни сгради с модерна архитектура, газификация, изградена система за климатизация, по два асансьора във всеки вход, собствен трафопост и канализация. Предвидени са и допълнителни удобства като зона за спорт и релакс със СПА, фитнес и ресторант, както и пешеходна и велосипедна алея в близост до реката – подходяща за разходки, спорт и отдих.
<br/>
<br/>В близост до имота ще намерите:
<br/>
<br/>- Училище: ЧОУ "Томас Едисън" на 443 метра
<br/>- Училище: Професионална гимназия по електротехника и автоматика на 333 метра
<br/>- Банка ДСК на 419 метра
<br/>- Банкомат: ATM - Банка ДСК на 419 метра
<br/>- Медицински център: Медицински Център Престиж - София на 476 метра
<br/>- Медицински център: Ортогин на 413 метра
<br/>- Трамвайна спирка: Кв. Павлово на 428 метра
<br/>- Трамвайна спирка: Кв. Овча купел на 467 метра
<br/>
<br/>"С нас, вашето търсене на имот завършва с усмивка."
<br/>
<br/>За оглед на това и други атрактивни предложения, не се колебайте да ни потърсите на посочения телефон или да ни изпратите данните си чрез формата за запитване на сайта.
<br/>
<br/>Реф. номер: 2100648.
Допълнителна информация 
| Тип на имота | |
| Площ | 90 кв.м. |
| Цена на кв.м. | € 2359 |
| Година на построяване | 2026 |
| Етаж | 3 |
| Асансьор | Не |
| Референтен номер | 2100648 |
| Район | |
| Гараж | Не |
| Общо етажи | 3 |
Подобни имоти
Топ imi имоти