Открийте мястото, където ще се чувствате у дома от първия момент.
<br/>
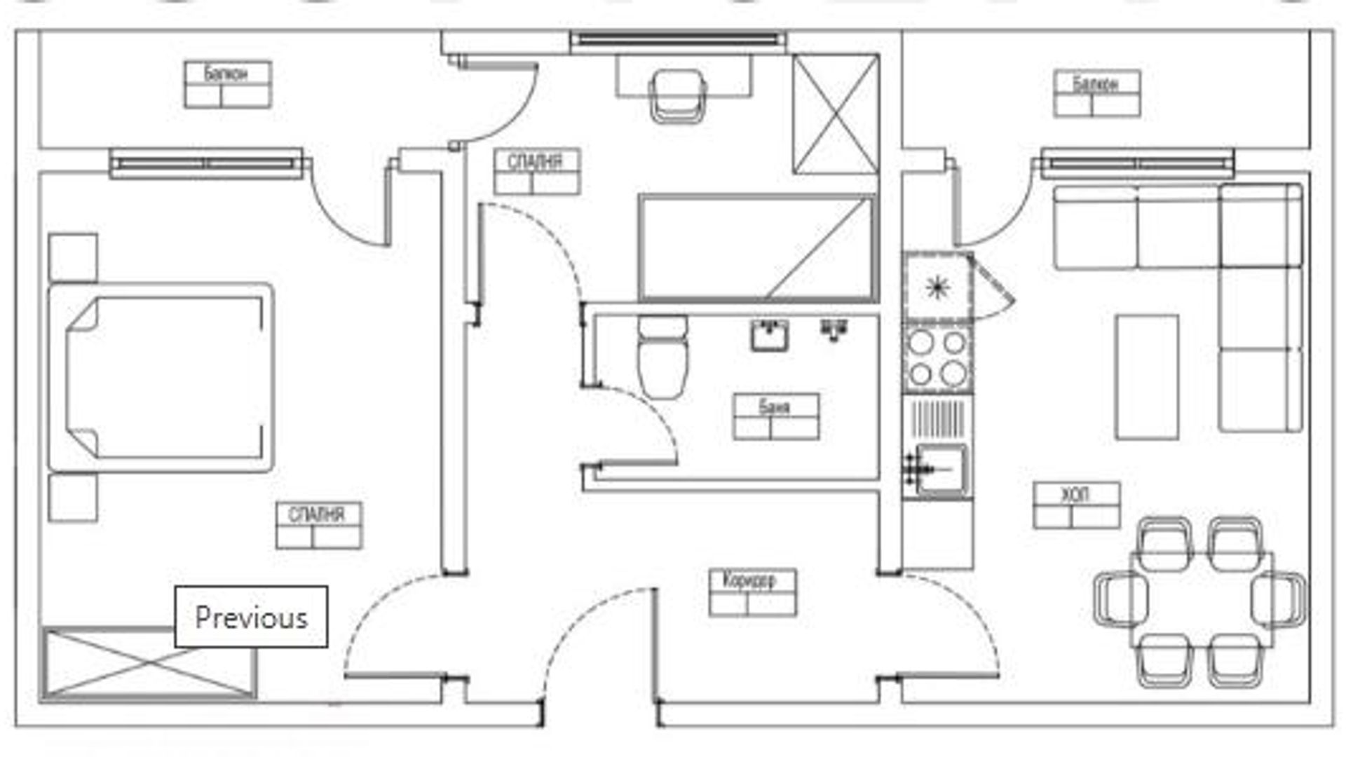
<br/>Титан Пропъртис офис - Черни връх с радост предлага на Вашето внимание тристаен апартамент за продажба в кв. Подуяне. Жилището с обща площ 70 кв.м се намира на 6-ти етаж в панелна сграда с 8 етажа. С южно изложение то е изпълнено с естествена светлина през целия ден. Разпределението включва хол с кухненски бокс, две спални, две тераси, баня с тоалетна и 4 кв.м мазе към имота. Апартаментът се предлага в готово за нанасяне състояние "до ключ" и е с централизирано отопление (ТЕЦ). Комбинацията от функционално разпределение и висококачествено завършване го прави подходящ избор както за семейство, така и за инвестиция.
<br/>
<br/>В близост до имота ще намерите:
<br/>
<br/>- Училище: 95 средно училище "Проф. Иван Шишманов" на 433 метра
<br/>- Основно училище: 143 ОУ "Георги Бенковски" на 225 метра
<br/>- Банка: ОББ клон Суха Река на 264 метра
<br/>- Банка: tbi bank на 191 метра
<br/>- Медицински център: 23-то ДКЦ на 443 метра
<br/>- Медицински център: Медицински център Хера/Medical Center Hera на 438 метра
<br/>- Метростанция: ХАДЖИ ДИМИТЪР на 300 метра
<br/>- Междинна спирка: МЕТРОСТАНЦИЯ ХАДЖИ ДИМИТЪР на 219 метра
<br/>
<br/>"С нас, вашето търсене на имот завършва с усмивка."
<br/>
<br/>За оглед на това и други атрактивни предложения, не се колебайте да ни потърсите на посочения телефон или да ни изпратите данните си чрез формата за запитване на сайта.
<br/>
<br/>Реф. номер: 2089406.
Допълнителна информация 
| Тип на имота | |
| Площ | 70 кв.м. |
| Цена на кв.м. | € 3374 |
| Година на построяване | 1980 |
| Етаж | 6 |
| Асансьор | Не |
| Референтен номер | 2089406 |
| Район | |
| Гараж | Не |
| Общо етажи | 6 |
Подобни имоти
Топ imi имоти