Открийте мястото, където ще се чувствате у дома от първия момент.
<br/>
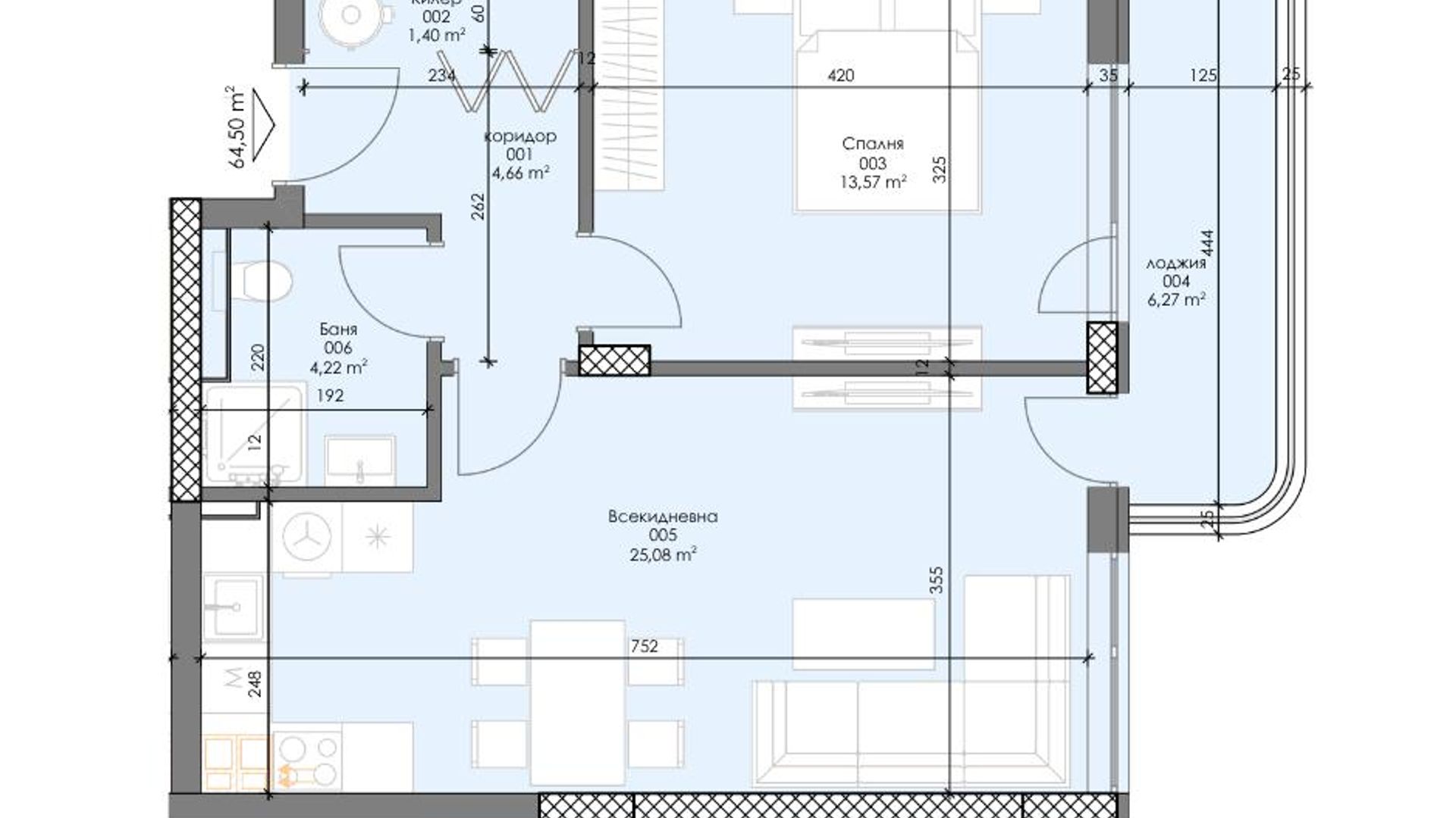
<br/>Титан Пропъртис офис - Бул.България с радост предлага на Вашето внимание двустаен апартамент за продажба в Зона Б-5. Жилището с площ 76 кв.м е разположено на 3-ти етаж в нова 14-етажна сграда, която ще бъде въведена в експлоатация края на 2027 г. Източното изложение осигурява слънчеви и светли стаи. Функционалният план включва входно антре, просторна всекидневна с кухненски бокс, спалня, баня с тоалетна и лоджия. Апартаментът се предлага на шпакловка и замазка, а изборът на отопление на електричество дава гъвкавост при интериорното решение. Новото строителство гарантира качествени материали и съвременни стандарти за енергийна ефективност. Имота се предлага заедно с подземно паркомясто на цена 37000 евро!
<br/>
<br/>В близост до имота ще намерите:
<br/>
<br/>- ДГ № 119 "Детска планета" - втора сграда на 268 метра
<br/>- Средно училище: 67 ОУ "Васил Друмев" на 164 метра
<br/>- Банка: УниКредит Булбанк на 431 метра
<br/>- Застрахователна агенция: Уникредит лизинг на 434 метра
<br/>- Аптека: ДЕНОНОЩНА АПТЕКА 7/24 на 301 метра
<br/>- Аптека: Аптека Декс на 168 метра
<br/>- Спирка: ПАРК СВ.СВ.ПЕТЪР И ПАВЕЛ на 425 метра
<br/>- Спирка: ДАНОН СЕРДИКА АД на 35 метра
<br/>
<br/>"С нас, вашето търсене на имот завършва с усмивка."
<br/>
<br/>За оглед на това и други атрактивни предложения, не се колебайте да ни потърсите на посочения телефон или да ни изпратите данните си чрез формата за запитване на сайта.
<br/>
<br/>Реф. номер: 2109769.
Допълнителна информация 
| Тип на имота | |
| Площ | 76 кв.м. |
| Цена на кв.м. | € 2517 |
| Година на построяване | |
| Етаж | 3 |
| Асансьор | Не |
| Референтен номер | 2109769 |
| Район | |
| Гараж | Не |
| Общо етажи | 3 |
Подобни имоти
Топ imi имоти