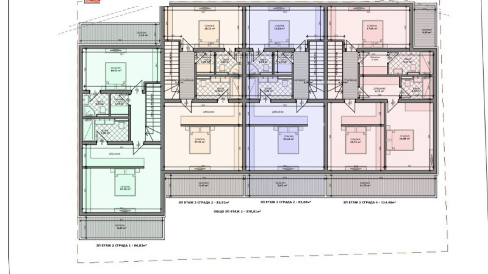
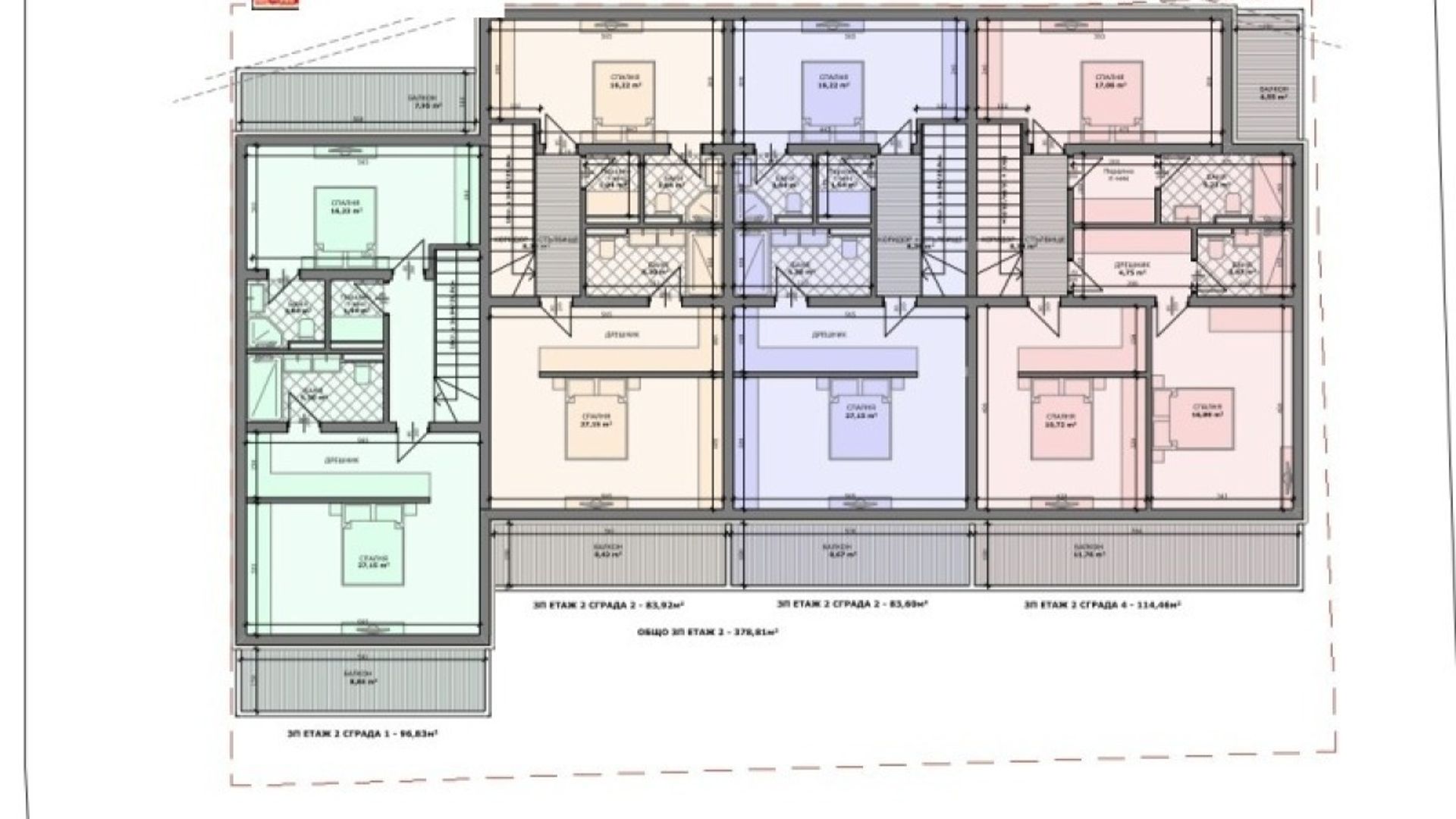
Продавам-Къщи - от 149 до 182 м2.,идеална част от двор -850 м2., гр Варна, с. Звездица. Къщите са на 2 етажа и са с вътрешна стълба. Връзка с градския транспорт на гр. Варна-/автобус номер 36/ и на 10 км. от центъра на града. Къщите са в центъра на селото. Размери на двора - 24 метра лице на асвалтова улица х 34 метра във дълбочина - /24 м. х 34 м/-В него ще бъдат изградени 4 къщи . Всяка къща ще е на два етажа с две или три спални и саомстоятелна партида за ток и вода, мръсен канал на локална пречиствателна станция към всяка къща. Към нея са предвидени 2 или 3 парко места, самостоятелен двор, фотоволтаик-15 kw. и батерии-30 kw., и ще бъде завършена по БДС. Без обзавеждане, завършени, стени, подове, тавани, бани. По желание фирмата може да ги завърши и до ключ . Къщите са в момента на идеен проект и бъдещо строителство. Описание и цени ; - Къща-1-РЗП-165.69 м2.,3 парко места ,прилежащ двор-126.71 м2.,Цена-225 000 евро . - Къща-2-РЗП-150.27 м2. ,2 парко места ,прилежащ двор-51.44 м2.,Цена-195 000 евро . - Къща-3-РЗП-149.26 м2. ,2 парко места ,прилежащ двор-52.41 м2.,Цена-195 000 евро . - Къща-4-РЗП-182.64 м2.,3 парко места ,прилежащ двор-53.25 м2.,Цена-245 000 евро . Договаряне на разсрочено плащане -аванс 20 %,откриване на строителна площадка -30 % , Акт-14-30 % и на Акт-16 -20 %. Започване на строителство-февруари/март-2026. ТАЗИ И ОЩЕ МНОГО ОФЕРТИ МОЖЕ ДА НАМЕРИТЕ НА; www.alfatrans-bg.eu.
Допълнителна информация 
| Тип на имота | |
| Площ | 0 кв.м. |
| Цена на кв.м. | € |
| Година на построяване | 2000 |
| Етаж | 0 |
| Асансьор | Не |
| Референтен номер | H-1716483 |
| Район | |
| Гараж | Не |
| Общо етажи | 0 |
Подобни имоти
Топ imi имоти