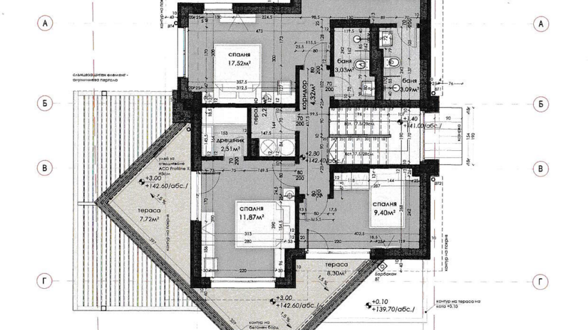
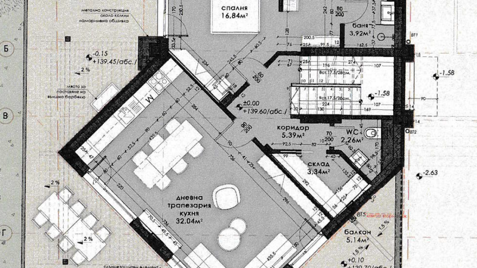
Агенция за недвижими имоти Flat & House продава новопостроена къща на три нива, находяща се в село Звездица, област Варна. Къщата е на етап акт 14 и се издава по БДС, като има опция за завършване "до ключ". Площта на поземления имот е 443 кв.м, а РЗП на къщата - 240,39 кв.м. На полуприземното ниво са разположени: склад, котелно, гардеробна и антре. До основното ниво има два подхода - един през основното стълбище и един през верандата(покрита с пергола), който също може да се използва като вход за гости. Дневното пространство е разположено в южната част на къщата и е с обособени зони - кухненска част, трапезария, зона за мека мебел с камина. От кухнята има излаз на тераса, под която са разположение две паркоместа. На същото ниво са разположени и една спалня със собствени дрешник и баня, отделна баня и склад. На второто ниво са разположени 3 спални помещения, едното от които със самостоятелни дрешник и баня, едно със самостоятелен дрешник и една обща баня за две от спалните. На същото ниво има разположено и перално помещение. Две от спалните разполагат с тераси. На покритата веранда може да бъде обособена барбекю зона. Имотът е разположен в самото село Звездижа, на тиха улица и в близост до главния път. Село Звездица е тихо и спокойно място за целогодишно живеене с чист въздух, на 5 минути от центъра на Варна по живописен път: 2 км около езерото и 2 км гора. Има църква, детска градина, магазини и заведения, кабелна телевизия, кабелен интернет. За повече информация - 0884 104 882
Допълнителна информация 
| Тип на имота | |
| Площ | 0 кв.м. |
| Цена на кв.м. | € |
| Година на построяване | 2000 |
| Етаж | 0 |
| Асансьор | Не |
| Референтен номер | H-215 |
| Район | |
| Гараж | Не |
| Общо етажи | 0 |
Подобни имоти
Топ imi имоти