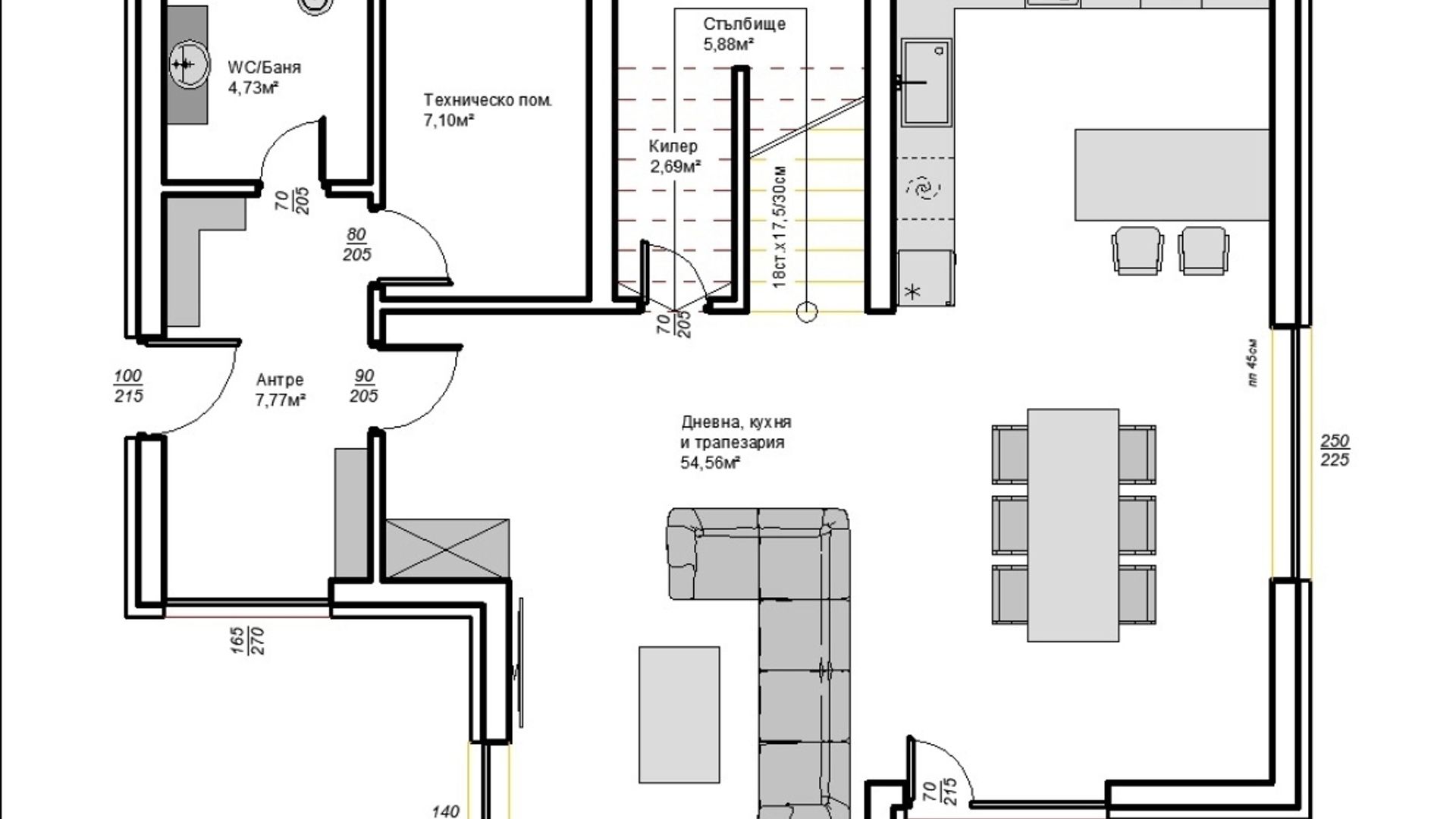
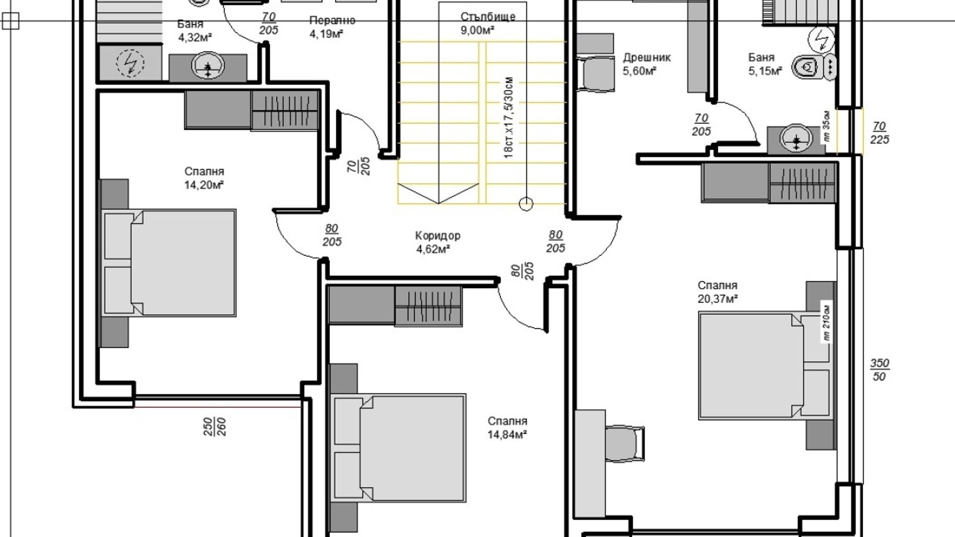
Предлагаме на Вашето внимание новострояща се еднофамилна къща със съвременна архитектура, разположена в една от най-престижните и спокойни зони на Варна – м-т Траката. Имотът съчетава уединение, чист въздух и бърз достъп до центъра на града и морските курорти. ✨ Основни характеристики: РЗП: 202 кв.м. Двор: 626 кв.м. (самостоятелен, равен и озеленен). Етап на строителство: Акт 14 (Въвеждане в експлоатация през 2027 г.). Изложение: Юг/Изток – изключително слънчев и топъл имот. Паркиране: Предвидено открито паркомясто в рамките на имота. 📐 Функционално разпределение: Етаж 1 (Дневна зона): Входно антре (7,77 кв.м); Впечатляваща дневна с кухненски бокс и трапезария (54,56 кв.м) с големи френски прозорци и директен излаз към двора; Котелно/техническо помещение (7,10 кв.м); Килер/склад (2,69 кв.м); Комбиниран санитарен възел (4,73 кв.м). Етаж 2 (Нощна зона): Родителска спалня (20,37 кв.м) със собствен дрешник (5,60 кв.м) и баня с тоалетна (5,15 кв.м); Две просторни детски спални (14,20 кв.м и 14,84 кв.м); Втора баня с тоалетна (4,32 кв.м) за етажа; Отделно перално помещение (4,19 кв.м); Коридор (4,62 кв.м). ✅ Степен на завършеност: Къщата се продава по БДС (на шпакловка и замазка), което дава възможност на новите собственици да реализират интериорен дизайн по свой вкус. Висок клас ПВЦ дограма с отлична енергийна ефективност. Изградени инсталации за електричество, вода и канализация (ключово предимство за района). 📍 Защо да изберете този имот? Локация: Траката е предпочитано място за живеене поради близостта до града и тишината на крайградската зона. Пространство: Големият двор от над 600 кв.м осигурява комфорт и място за релакс, басейн или детска площадка. Светлина: Правилното изложение гарантира естествена светлина през целия ден. Свържете се с нас за повече информация и организиране на оглед! 0884104882
Допълнителна информация 
| Тип на имота | |
| Площ | 0 кв.м. |
| Цена на кв.м. | € |
| Година на построяване | 2000 |
| Етаж | 0 |
| Асансьор | Не |
| Референтен номер | H-230 |
| Район | |
| Гараж | Не |
| Общо етажи | 0 |
Подобни имоти
Топ imi имоти