Агенция за недвижими имоти Титан Пропъртис предлага на Вашето внимание Многостаен апартамент, за продажба, намиращ се в кв. Кайсиева градина
<br/>
<br/> Апартамента е разположен в тих и спокоен район, в близост до спирки, училище и детска градина, магазини, места за отдих
<br/>
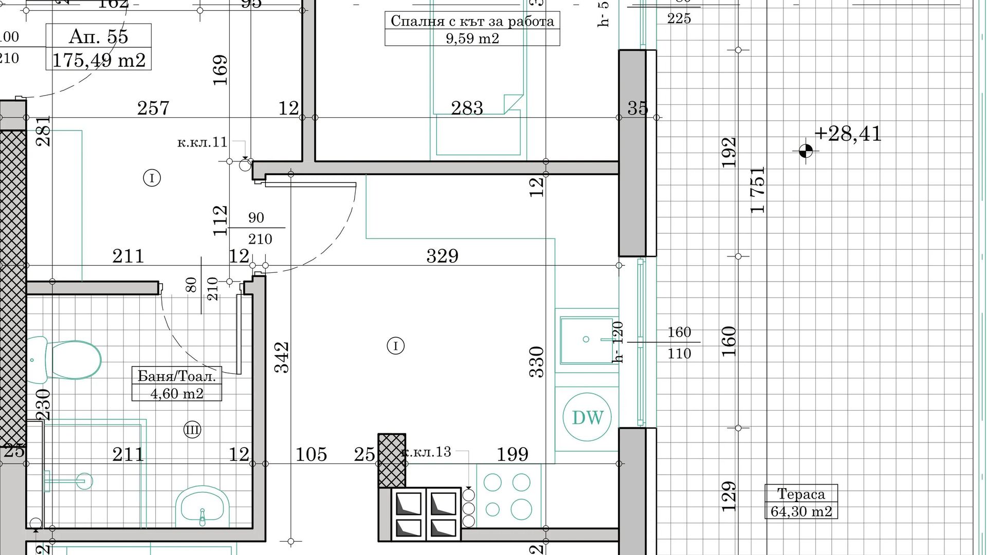
<br/>Имота е ситуиран на 11-ти жилищен етаж и разполага с площ от 199.83 кв.м разгърнати в следното разпределение: входно антре, дневен тракт, три спални, две бани с тоалетна, килер, тераса.
<br/>
<br/>Допълнителна информация:
<br/>
<br/>- Фасадата ще бъде изпълнена с висококачествени материали, включително:
<br/>
<br/>Парапети от закалено стъкло, придаващи модерен и изискан облик. Топлоизолация с твърда каменна вата (10 см) в партерната част за енергийна ефективност. Вентилируема обшивка “Еталбонд", осигуряваща дълготрайност и стил. Общите части ще бъдат завършени с внимание към детайла: Стълбищна клетка – декоративна мазилка, иноксов парапет и облицовка с гранитни плочи. Входни врати – блиндирани, с двустранно заключване за повишена сигурност. Интериорни врати – по избор на клиента, за персонализиран завършек.
<br/>
<br/> Дограма и шумоизолация:
<br/>За максимален комфорт и енергийна ефективност, ще бъде монтирана петкамерна PVC дограма “Rehau", с обков “Roto" или “Siegenia". Дограмата ще бъде двуцветна – бяла отвътре и цветна отвън, в съответствие с архитектурния стил на сградата. Стъклопакетът ще бъде с минимална дебелина 30 мм, осигуряващ отлична шумо- и топлоизолация.
<br/>
<br/>Очакава се Акт 16 в началото на 2027 година.
<br/>
<br/>С нас, вашето търсене на имот завършва с усмивка.
<br/>
<br/> Агенцията разполага с множество оферти в и извън района. За оглед на това и други атрактивни предложения, не се колебайте да ни потърсите на посочения телефон.
<br/>
<br/>Реф. номер: 2097018
Допълнителна информация 
| Тип на имота | |
| Площ | 199.83 кв.м. |
| Цена на кв.м. | € 1099 |
| Година на построяване | 2027 |
| Етаж | 11 |
| Асансьор | Не |
| Референтен номер | 75992 |
| Район | |
| Гараж | Не |
| Общо етажи | 11 |
Подобни имоти
Топ imi имоти