












| Тип на имота | |
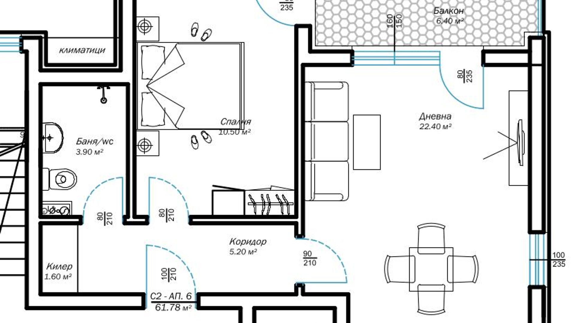
| Площ | 67.32 кв.м. |
| Цена на кв.м. | € 1539 |
| Година на построяване | |
| Етаж | 2 |
| Асансьор | Не |
| Референтен номер | 82016 |
| Район | |
| Гараж | Не |
| Общо етажи | 2 |

Телефон за връзка: ...
Настоящият калкулатор служи само за улеснение на потребителите на платформата. Изчисленията не представляват предложение от страна на никоя банка за сключване на договор за кредит. Окончателните условия по всеки кредит се определят при сключването на договора индивидуално спрямо профила на кредитоискателя. Настоящите изчисления се базират на осреднени стойности, взимани от различни източници